Sample Deliverables
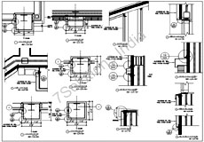
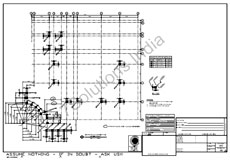
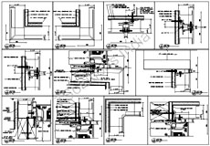
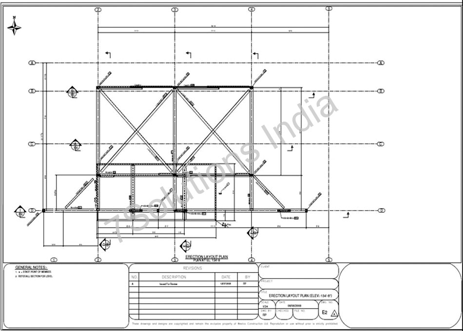
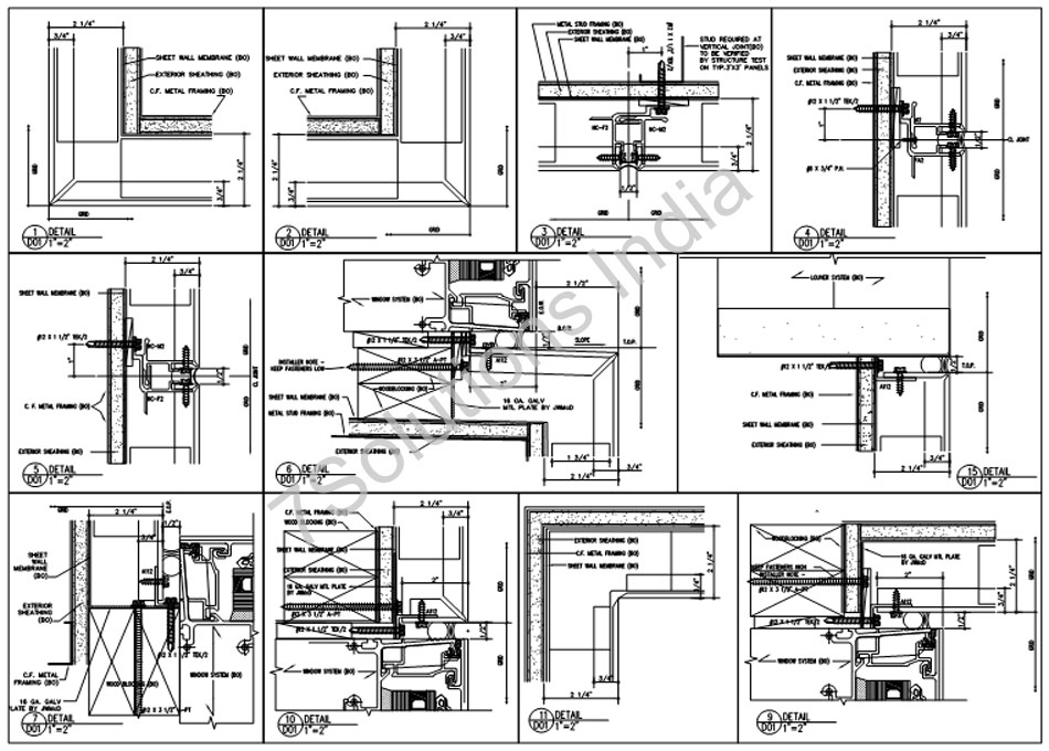
Steel Detailing Sample Structure Steel Detailing Drawing Sample India
Use these sample pages to review drawing depth, detailing standards and the level of documentation support available across active structural workflows.
- Support for structural engineers, consultants, fabricators, erectors and construction teams.
- Clear documentation, model coordination and revision-aware delivery across active project stages.
- Global service positioning for USA, UK, Canada, Australia and Europe.
Buyer Confidence
Sample packages help buyers assess fit before they inquire.
More corporate first impressions
The outdated banner, slider and fixed-width shell are replaced by a premium layout that feels more credible to international engineering buyers.
Stronger conversion path
Key pages now reinforce delivery clarity, trust signals and inquiry actions instead of pushing visitors through a dated visual system.
Responsive by default
The shared wrapper, navigation and content styles are now built to hold up better across desktop, tablet and mobile screens.
Ready to Discuss Scope
Need structural drafting, BIM modeling or steel detailing support on an active package?
Use the quote and contact flow to share project files, markups, fabrication scope or overflow requirements with the team.








